Description de l'offre réf. 1443 :

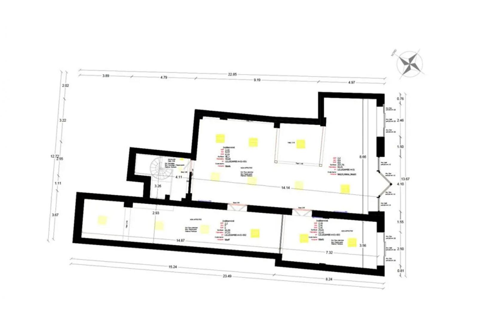
Lille Immo vous propose à la location un superbe local commercial de 356 m², idéalement situé en plein coeur de la rue Gambetta, l'une des artères les plus dynamiques et recherchées de Lille.

Actuellement occupé par la Caisse d'Épargne, le local sera disponible à compter du 15 mars 2026. Il bénéficie d'un état technique irréprochable et est entièrement conforme aux normes, offrant un environnement optimal pour accueillir votre activité.

Conditions de location :

Loyer mensuel : 6 985 euros

Charges mensuels : 600 euros

Dépôt de garantie : 3 mois de loyer HT HC

Honoraires d'agence : 10 % HT du loyer de la première triennale

Contact :

Paul D'Hondt
06 01 18 49 52
paul.dhondt@lille-immo.fr

Localisation :

DPE :

DPE vierge
DPE vierge

Contactez-nous

DHONDT Paul

DHONDT Paul

03 66 72 34 19

À découvrir également