Description de l'offre réf. 1456 :

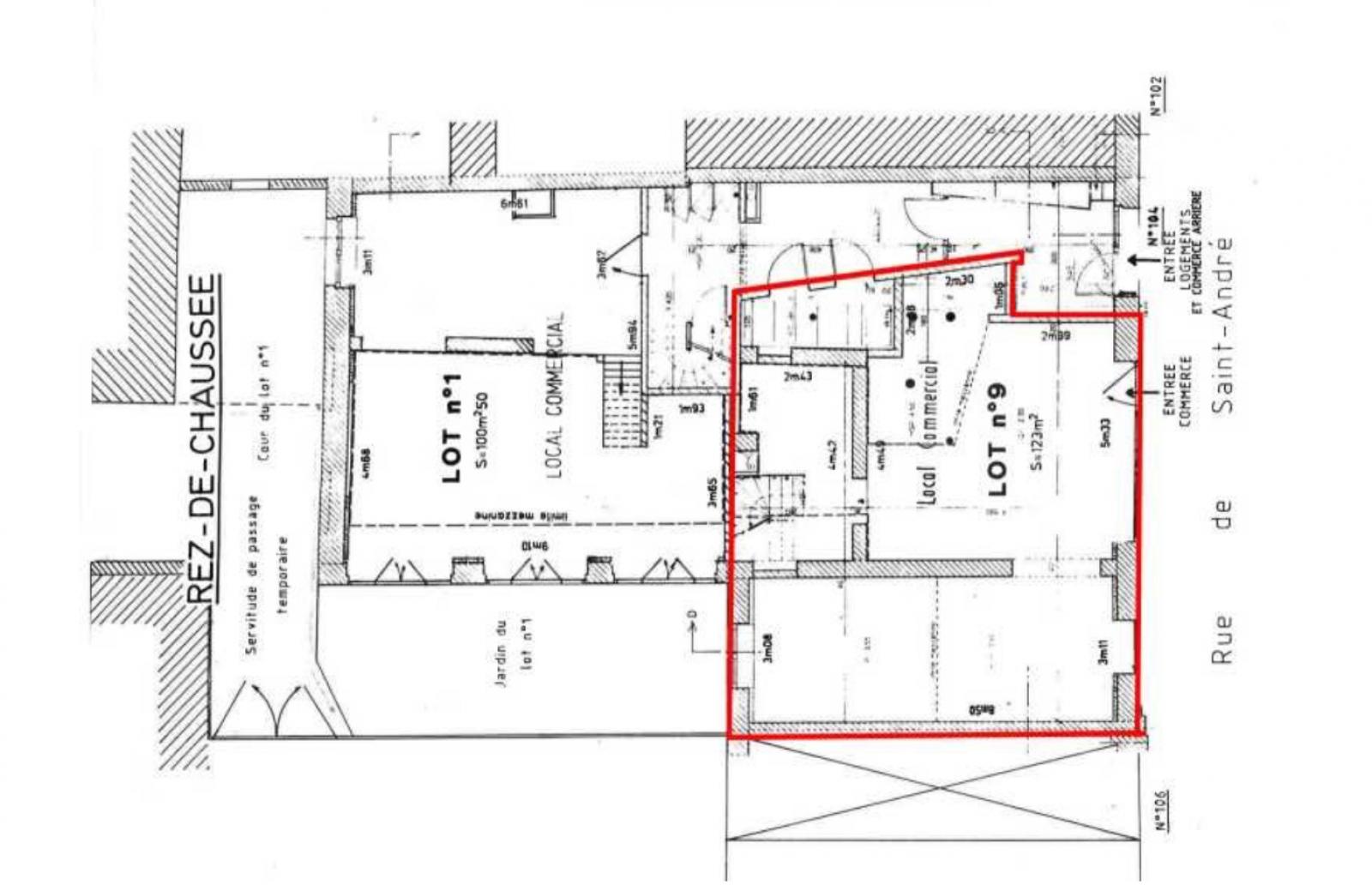
LILLE IMMO vous propose à la location ce superbe local commercial, idéalement situé au coeur du Vieux-Lille, dans un emplacement recherché et dynamique.

Le local bénéficie d'un état technique irréprochable et se compose :

d'un espace de vente en rez-de-chaussée, d'une salle de consultation, d'une salle de soins.

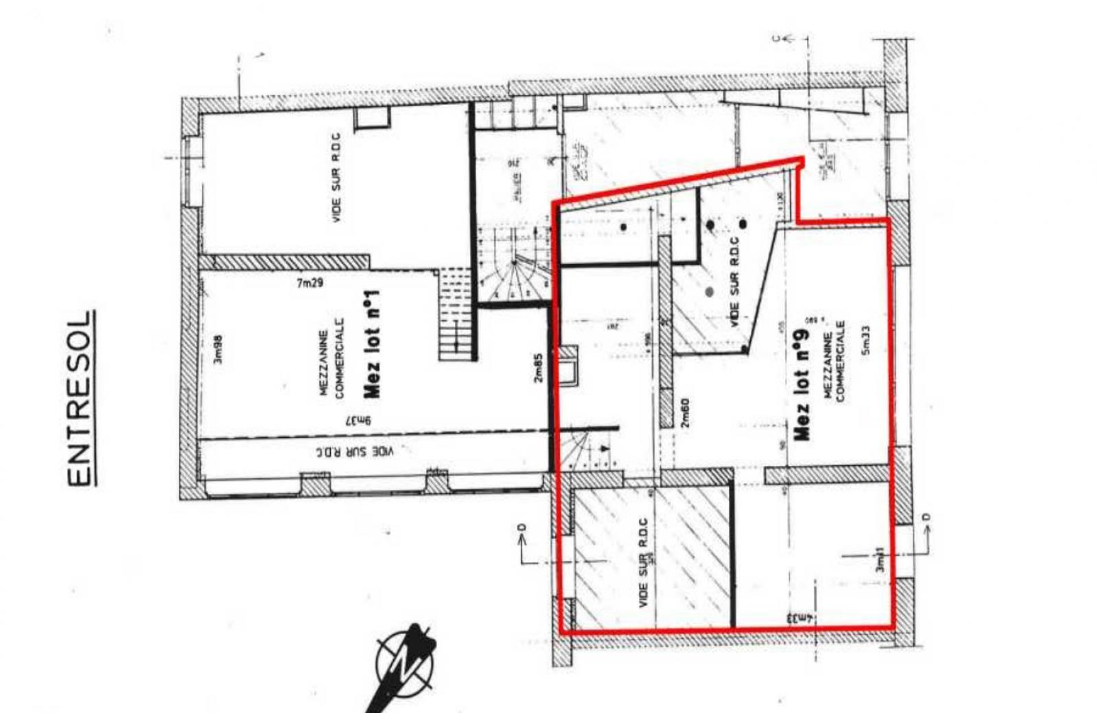
Il dispose également d'un bel étage très lumineux, parfaitement adapté à un usage de bureaux ou aménageable selon vos besoins.

Aucun travaux à prévoir, le local est prêt à l'exploitation.

Disponibilité : mars 2026

Conditions financières :

Loyer : 2 600 euros HT HC / mois

Charges : 200 euros / mois

Taxe foncière : 2 000 euros / an

Dépôt de garantie : 7 800 euros

Frais de rédaction de bail : 1 500 euros HT

Honoraires d'agence : 12 % HT du loyer de la première triennale

Emplacement premium, opportunité rare sur le secteur du Vieux-Lille.

Contact : Paul D'Hondt - 06 01 18 49 52 - paul.dhondt@lille-immo.fr

Localisation :

DPE :

DPE vierge
DPE vierge

Contactez-nous

DHONDT Paul

DHONDT Paul

03 66 72 34 19

À découvrir également