Description de l'offre réf. 1428 :

LILLE IMMO vous propose à la location ce super local d'activité situé à Villeneuve-d'Ascq

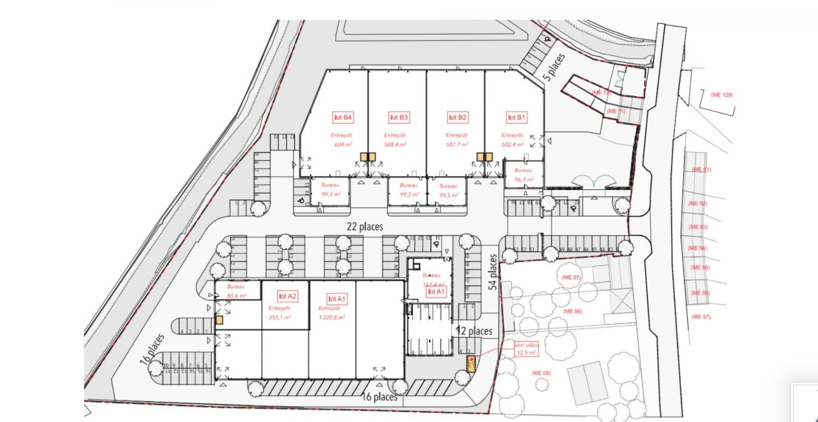
Nous vous présentons une cellule d'environ 800 m², idéalement implantée au sein du parc dynamique des Rives de la Marque, à proximité immédiate de l'A22, de la gare de Wasquehal et des lignes de bus 34 et 911.
Cet emplacement stratégique offre une accessibilité optimale pour vos collaborateurs, vos clients et vos flux logistiques.

La cellule se compose de :

600 m² d'espace d'activité, bénéficiant d'une hauteur sous poutre de 6 mètres, idéale pour des activités industrielles, artisanales ou logistiques.

200 m² de bureaux, répartis entre le rez-de-chaussée et le R+1, proposant des espaces fonctionnels et adaptables selon vos besoins.

Prestations et caractéristiques :

Porte sectionnelle

Ossature métallique, murs en béton, couverture bac acier

Résistance au sol : 2T/m²

Accès adaptés aux moyens porteurs

Places de stationnement privatives au pied du bâtiment

Livraison « brut », avec fluides en attente, offrant une totale liberté d'aménagement

Disponibilité : T1 2026

Un local moderne, modulable et idéalement situé, parfait pour accompagner le développement de votre entreprise dans un cadre professionnel et attractif.

Conditions de location :

Loyer mensuel : 6 560 euros HT/HC

Honoraires d'agence : 10 % HT de la première triennale

Frais de rédaction de bail : 2 000 euros HT

Contact :
Paul D'Hondt ? 06 01 18 49 52 ? paul.dhondt@lille-immo.fr

Localisation :

DPE :

DPE vierge
DPE vierge

Contactez-nous

DHONDT Paul

DHONDT Paul

03 66 72 34 19